sebastiano rossi
architect
homehome | info@sebastianorossi.es | Palma de Mallorca 2012 | site map | terms of use | development: LURIAT logo diseño luriat
SOCIAL SERVICES CENTER IN PALMA
promoter: City Concil of Palma de Mallorca
year: 2010

Google Maps location
click para ampliar
click para ampliar
click para ampliar
click para ampliar
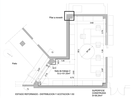
This is the renovation of existing spaces with no specific use at the goundfloor of the Coll d'en Rabassa’s social and health services Centre.
es....|.... cat....| ... en....|.... it....|.... pt....|.... fr....|.... de....|.... ru....|.... cn